Vendesi Ristorante America Graffiti a Castenedolo

Caratteristiche

Prezzo:
€ 400.000
Tipologia di attività:
Hamburgheria
Regione:
Lombardia
Provincia:
Brescia
Riferimento attività:
RIST00018-BS
Inserzionista:
Agenzia
Nome Agenzia:
BENIMMOBILI IMPRESA SRL

Descrizione generale

Vendesi rinomato e storico ristorante America Graffiti a Castenedolo, provincia di Brescia

CASTENEDOLO (Brescia) - Entra nel mito dei diner americani: America Graffiti di Castenedolo pronto a scrivere una nuova storiaIl fascino degli anni ’50, il sapore dell’America, la tua occasione imprenditoriale

In una location con grande visibilità grazie al costante flusso veicolare, si apre una straordinaria opportunità per imprenditori e investitori del settore ristorazione: il ristorante America Graffiti, locale storico del noto franchising italiano ispirato ai diner americani degli anni ’50, è ora in vendita.

Un’occasione unica di subentrare in un locale chiavi in mano, con marchio consolidato, clientela fidelizzata e personale qualificato già formato, pronto a garantire continuità e qualità del servizio sin dal primo giorno.

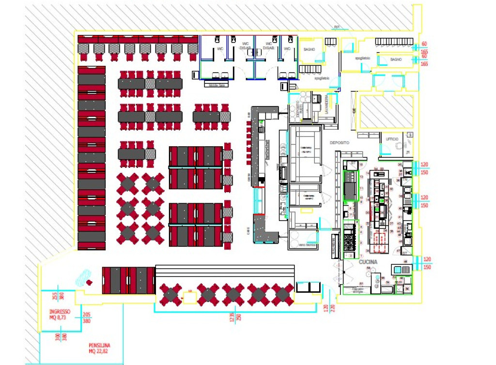
Il ristorante si sviluppa su 410 m² e può ospitare 250 coperti tra sala interna e dehors, con ambienti ampi, luminosi e funzionali, progettati per accogliere famiglie, giovani e gruppi nel tipico stile vivace e accogliente di America Graffiti.

La cucina, professionale e completamente attrezzata, è dotata di doppia canna fumaria, impianti moderni e un magazzino dedicato per una gestione efficiente delle forniture, capace di supportare un alto volume di servizio senza compromessi sulla qualità.

All’esterno, il locale vanta ampio parcheggio privato e una posizione strategica facilmente raggiungibile, che garantisce un costante flusso di clientela. Il contratto di locazione di € 2.500 + IVA mensili è particolarmente vantaggioso rispetto alle potenzialità del locale.

Dal 2015, America Graffiti è diventato un punto di riferimento locale: gli ospiti tornano per gli hamburger gourmet, le grigliate, i piatti tex-mex, i dolci tipici americani e le proposte vegetariane o vegane, vivendo ogni volta un’esperienza conviviale autentica e memorabile.

L’attività conta 7 dipendenti altamente formati, autonomi nella gestione quotidiana, offrendo di fatto un passaggio gestionale senza interruzioni operative. La clientela fidelizzata è gestita tramite un CRM dedicato, offrendo all’acquirente un vantaggio competitivo immediato per campagne di marketing mirate e fidelizzazione continuativa.

Un valore aggiunto unico: pur facendo parte del franchising America Graffiti, non esiste alcun vincolo di continuità. L’acquirente potrà scegliere se mantenere il brand – con la sua riconoscibilità consolidata – o reinterpretare il format secondo la propria visione imprenditoriale.

La vendita viene proposta per nuove strategia di investimento della proprietà, non per problematiche gestionali: il locale è solido, ben avviato e pronto a continuare la propria storia di successo sotto una nuova guida.

Documenti contabili e dati sulle performance economiche sono disponibili per un approfondimento dettagliato presso i nostri uffici di Via Malta 7, Brescia.

Mondoattivita.it – specializzati della compravendita di attività commerciali
tel. 0300974745 - e-mail: info@mondoattivita.it
Via Malta n.7 – Galleria Kennedy – 25124 Brescia
Mondoattività è un brand di Benimmobili Impresa Srl

  • Superficie: 440mq
  • Numero vetrine: 3
  • Orari di apertura: tutti i giorni 19–22:30; sabato e domenica anche 12–14:30
  • Nr. Dipendenti: 9 dipendenti
  • Canone di Locazione annuale: 30.000,00 euro/annui oltre a Iva di legge
  • Nr. coperti: 250 interni ed esterni
  • Tipologia Menu: tradizionale diner americani anni ’50, hamburger, tex-mex, proposte vegetariane e bowls
  • Arredamento e Attrezzature: Compreso
  • Stato del Locale/Immobile: in buone condizioni
  • Data Annuncio: 18.11.2025
  • Canna fumaria
  • Anni di attività: 10
  • Vetrine su strada
  • Aria Condizionata
  • Riscaldamento: Pompa di Calore
  • Magazzino: Si
  • Cucina/Laboratorio: Attrezzata ed Equipaggiata
  • Disponibilità Parcheggio: Area parcheggio Privata
  • Dehors esterno: Privato
  • Insegna: America Graffiti Restaurant

Piante locale

Mondo Attività: Vendesi Ristorante America Graffiti a Castenedolo(p1)

Attività Commerciali in vendita che ti potrebbero interessare

Non hai trovato l’attività giusta?

Se l’attività che stai cercando non è ancora tra le nostre proposte, non preoccuparti!

Puoi inviarci le caratteristiche e le esigenze specifiche dell’attività che desideri acquistare.

I nostri esperti analizzeranno il mercato e ti proporranno opportunità personalizzate, selezionate appositamente per te, così da aiutarti a trovare l’investimento più adatto alle tue aspettative.

📩 Inviaci la tua richiesta per ricevere nuove opportunità!